Many
Manuals
search
Categorias
Marcas
Principal
Linear
não
Boiler
Manual do Utilizador
Linear Boiler Manual do Utilizador Página 21
Descarregar
Partilhar
Partilha
Adicionar aos meus manuais
Imprimir
Página
/
28
Índice
MARCADORES
Avaliado
.
/ 5. Com base em
avaliações de clientes
1
2
3
4
5
6
7
8
9
10
11
12
13
14
15
16
17
18
19
20
21
22
23
24
25
26
27
28
PAGE 21
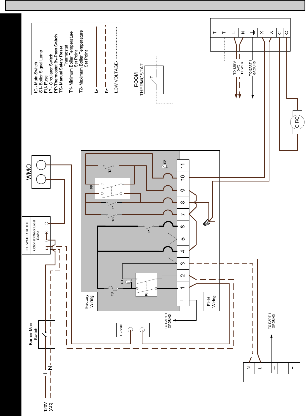
BIASI B/
40
B-40 Contr
ol Panel
W
iring Diagram for Becke
tt/Heat W
i
se Oil Burner Line
V
oltage
CIRCULA
TOR RELAY
BURNER CON
TROL
1
2
...
16
17
18
19
20
21
22
23
24
25
26
27
28
6-12 SECTION
1
TABLE OF CONTENTS
3
WARNING
5
2. General Information:
6
4. Combustion Air Supply:
7
5. Boiler Location:
7
6. Boiler Block Assembly:
8
8. Burner Setup:
10
9. Gas Line Piping
12
PAGE 13
13
BIASI B/40
13
10. Breeching and Venting:
14
11. Piping:
15
10. Blocked Flue Switch:
15
PAGE 16
16
12. Boiler Jacket Assembly:
17
13. Wiring:
18
CONTROL PANEL DESCRIPTION
19
CIRCULATOR RELAY
20
BURNER CONTROL
20
PAGE 22
22
Burner Primary Control
23
14. Commissioning:
24
15. Maintenance:
24
16. Installer Notes
25
PAGE 26
26
PAGE 27
27
Warranty
28
Comentários a estes Manuais
Sem comentários
Publish
Manuais e produtos relacionados com não Linear Boiler
não Linear MDT-2 Manual do Utilizador
(2 páginas)
não Linear DX-COKIT Manual do Utilizador
(2 páginas)
não Linear RE-BWC1 Manual do Utilizador
(1 páginas)
não Linear DR2 Manual do Utilizador
(1 páginas)
não Linear 3060 Manual do Utilizador
(2 páginas)
não Linear Central Vacuum Manual do Utilizador
(1 páginas)
não Linear Sander WO15Z-1 Manual do Utilizador
(2 páginas)
não Linear Drums 5525 Manual do Utilizador
(12 páginas)
não Linear DMC-10 Manual do Utilizador
(2 páginas)
não Linear Automobile Electronics 216559 B Manual do Utilizador
(2 páginas)
não Linear DXS-10 Manual do Utilizador
(1 páginas)
não Linear XR-16 Manual do Utilizador
(2 páginas)
não Linear 115500 B Manual do Utilizador
(1 páginas)
não Linear 2500-2346-LP Manual do Utilizador
(2 páginas)
não Linear V361 Manual do Utilizador
(1 páginas)
não Linear Satellite Radio 3089 Manual do Utilizador
(2 páginas)
não Linear wt00z-1 Manual do Utilizador
(4 páginas)
Imprimir documento
Imprimir página 21
Comentários a estes Manuais